不動産情報

金沢市疋田1丁目 2区画分譲地!

2024年12月13日

金沢市疋田1丁目に2区画の分譲地を販売いたします!

疋田中央公園が近く、

近隣に商業施設も豊富のため生活利便性バツグン!

子育て世代にも大変おススメです!!

ご興味のある方はページ下のボタンからお気軽にお問い合わせください。

🔹土地情報

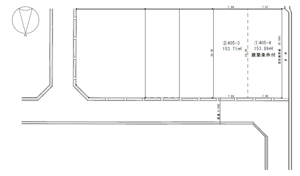
 所  在  地:金沢市疋田1丁目405-4・405-3

疋田1丁目分譲宅地
疋田1丁目分譲宅地

区画①

 ★建築条件付き★

土地面積:153.89㎡(46.55坪)

間  口:7.66m 前面道路6m


価       格:

14,900,000円+ 

上下水道負担金700,000円(税込)

=15,600,000円


坪  単  価:320,100円


区画②

 ★お好きな建築会社にて建築できます★

土地面積:153.71㎡(46.49坪)

間  口:7.66m 前面道路6m

価       格:

14,900,000円+

 上下水道負担金700,000円(税込)

=15,600,000円


坪  単  価:320,500円

◎校区

 小  学  校:千坂小学校 

 中  学  校:北鳴中学校


◎備考

 上下水道負担金70万円(税込)

 ①号地 建築条件付き

 ②号地 お好きな建築会社にて建築できます。

 

資金計画からご相談や、その他ご要望に応じてプラン作成致します!

お気軽にご相談ください!